瑞典 [切换地点] 欢迎来到卖生意网

我要发布
生意编号33912 最近更新2025年01月06日 1130人已浏览 经纪人Ref: 22433.1

Huntington Tavern, 30 year lease Offers Over$99,500+sav

塔斯马尼亚酒店
转让费$9.95万
生意转让
寻求投资
合作伙伴
Paul Scott Business Brokers Network Australia
我要咨询

生意概述

  • 物业类型
  • 物业面积
  • 每月租金
  • 房租押金
  • 月营业额
  • 欠款负债
  • 月毛利润
  • 月净利润
  • 库       存
  • 设施设备
  • 应付帐款
  • 应收账款
  • 卖家职责
  • 员工人数
  • 成立时间
  • 发布来源 经纪人

转让原因

NA

生意详情

Modern well maintained, easily managed tavern, in excellent condition, in growth area. Attractive design with recycled brick cladding, colonial pane windows, veranda on two sides, complimented by a large carpark.

Sale includes all plant and equipment, An established business which has been operating under management.

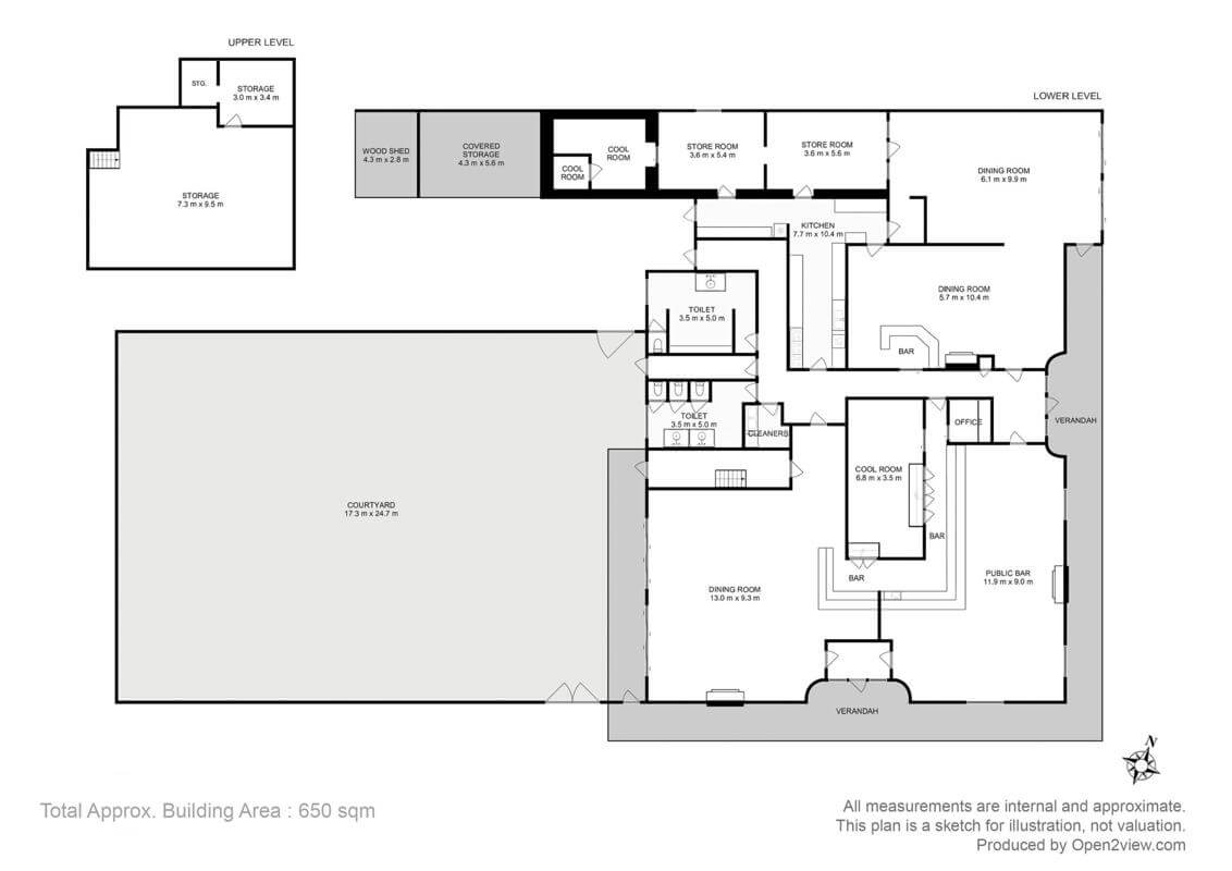
The tavern features a public bar, dinning room, spacious function room, commercial kitchen, large entertainment courtyard, office, upstairs yet to be finished managers quarters, two walk in cool rooms and freezer. the building size is approximately 650 m2, the entertainment courtyard measures approximately 420m2 and can accommodate 400 patrons.

There was a hotel on this 2560m2 site back in 1862, current hotel was built in 1988.

This represents a low ingoing opportunity for an experienced operator or a novice to cut their teeth on, very reasonable rent and with upside to rejuvenate the trade and enjoy a healthy net profit.

Includes three wood heaters, Keno and UBET, POS system, surveillance system.

Freehold going concern or investment sale considered.

Priced to sell, with favourable lease terms and rent.

To arrange an inspection-Contact Paul Scott on 0477 771 098 email: pauls@businessbrokersnetwork.com.au or contact Praveen Pant on 0432 256 682 INTENDING PURCHASERS TO MAKE THEIR OWN INVESTIGATIONS AND ENQUIRIES IN RELATION TO THE BUSINESS AND NOT TO RELY UPON WARRANTY OR STATEMENT MADE BY THE VENDOR OR BY ANYONE ON HIS/HER BEHALF. NOTE: All figures are approximate

会员专区

我要咨询
请使用英文发送留言
* 您的姓名
* 手机号码
* 电子邮箱
留言详情
所有广告信息均由卖家或其代表提供。我们不对信息的准确性、完整性或真实性进行核实,也不提供任何保证或担保。任何因此而产生的纠纷、索赔或决定,均应由买卖双方自行承担和解决。了解更多 如何避免诈骗
/

请稍候,我们正在处理中...